City Chic - Apartment Design Trends
Investing in a small city apartment—whether it's for yourself, to rent out, or even for your kids—is more than just a financial decision; it’s a creative opportunity. In this piece, I’ll walk you through where to focus your resources, and how to set the stage for a space that grows and adapts with time.
Monika Budniak
8/2/20253 min read


As an interior architect, I believe that how you finish and shape the space is just as important as the purchase itself. It’s about making smart, strategic choices that elevate the apartment’s potential—both aesthetically and functionally. Some elements are worth the upfront investment to create lasting impact, while others are best left as a clean, adaptable canvas.
FUNCTION FIRST
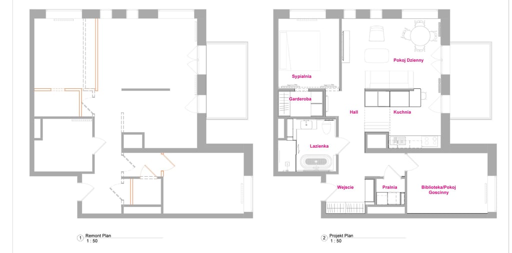
Reworking the floor plan is one of the most impactful investments you can make. Developer apartments are often designed with a generic layout—but they’re usually ready for custom reconfiguration. In the case of existing buildings, changes may require permits or at least approval for altering structural or partition walls, but the effort is often worth it. Take a critical look at the plan and ask: Does this layout support the way I (or future occupants) live today? A smart reconfiguration can dramatically improve flow, usability, and comfort—laying the foundation for everything that follows.


CLEVER STORAGE
Yes—clever storage begins with a smart layout. Built-in cabinets and integrated storage solutions are by far the most effective way to maximize every inch of a small apartment. They allow us to shape the space intentionally, ensuring that everything has its place without compromising on design. Even more importantly, they give us the luxury of keeping our belongings within reach, neatly tucked behind elegant finishes—whether it’s warm wood, sleek lacquer, or mirrored panels that visually expand the room. Guests see refined, cohesive interiors; what they don’t see is the quiet efficiency behind those seamless surfaces.


SUSTAINABILITY
Sustainability isn’t just a trend—it’s a responsibility, and one that today’s renters and urban homeowners deeply value. Natural materials like hardwood flooring, ceramic tiles, and low-VOC paints create a healthy foundation, but meaningful impact comes from the way we design and equip the space.
Start with light: orient your sofa toward the windows, place the desk where it can benefit from daylight, and keep the layout open to let natural light travel freely. Complement this with smart choices in the kitchen and bathroom—invest in energy-efficient (EnergyStar Certification) appliances and water-saving fixtures ( waterSense Label, flow rate 1.5 or less). Look for certified faucets and shower systems designed to reduce water consumption without compromising comfort. These thoughtful upgrades lower utility bills, conserve resources, and elevate the overall standard of living.
And finally, bring life into the space. Indoor plants not only clean the air, they restore a sense of balance. Even the smallest balcony can become a charming “city garden”—a pocket of calm and green in the heart of the urban landscape.




AUTHENTICITY
Whether the apartment is intended as a rental or a long-term home, embracing authenticity is always a winning choice. Thoughtful personalization—subtle accents balanced with bold design statements—can truly elevate a space.
Let’s begin with the foundation: the floors. A luxurious hardwood floor, especially in a timeless herringbone pattern or rich mahogany tone, instantly adds a sense of heritage and craftsmanship. It's those handcrafted details that make a home feel genuinely special—like a handmade Italian porcelain soap dish in the bathroom, offering a quiet nod to artisanal elegance.
Why not add a little unexpected joy to the laundry room with a bold, graphic wallpaper? It’s a simple way to turn a functional space into a design moment. And don’t overlook the windows—floor-length, softly tinted sheers that fall gracefully to the wood flooring bring in light while adding a layer of sophistication and charm.
Authenticity isn’t about perfection—it’s about creating spaces with soul, where every detail feels intentional and inspiring.


