Bio
Sustainability
Projects
How I work
Press
Notes on Practice
Bio
Sustainability
Projects
How I work
Press
Notes on Practice
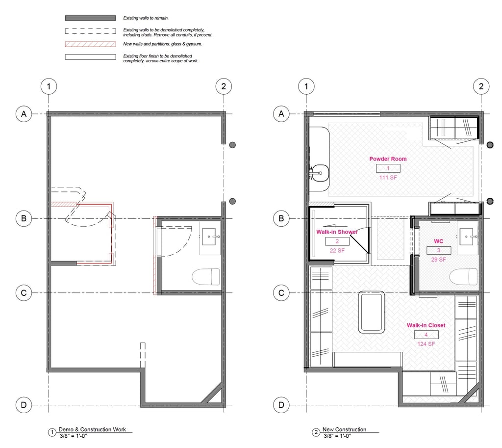
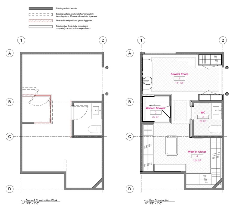
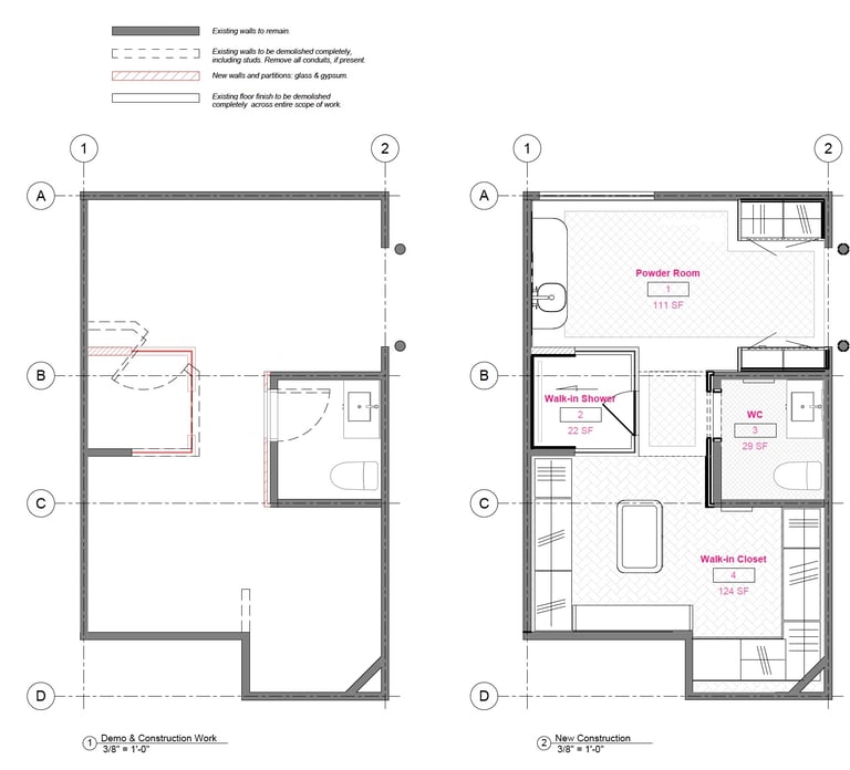
Master Suite Design XW
Under-construction
Construction
Let's Talk